На публичные слушания вынесут проект межевания 21 квартала Кунцево.
Всем привет!
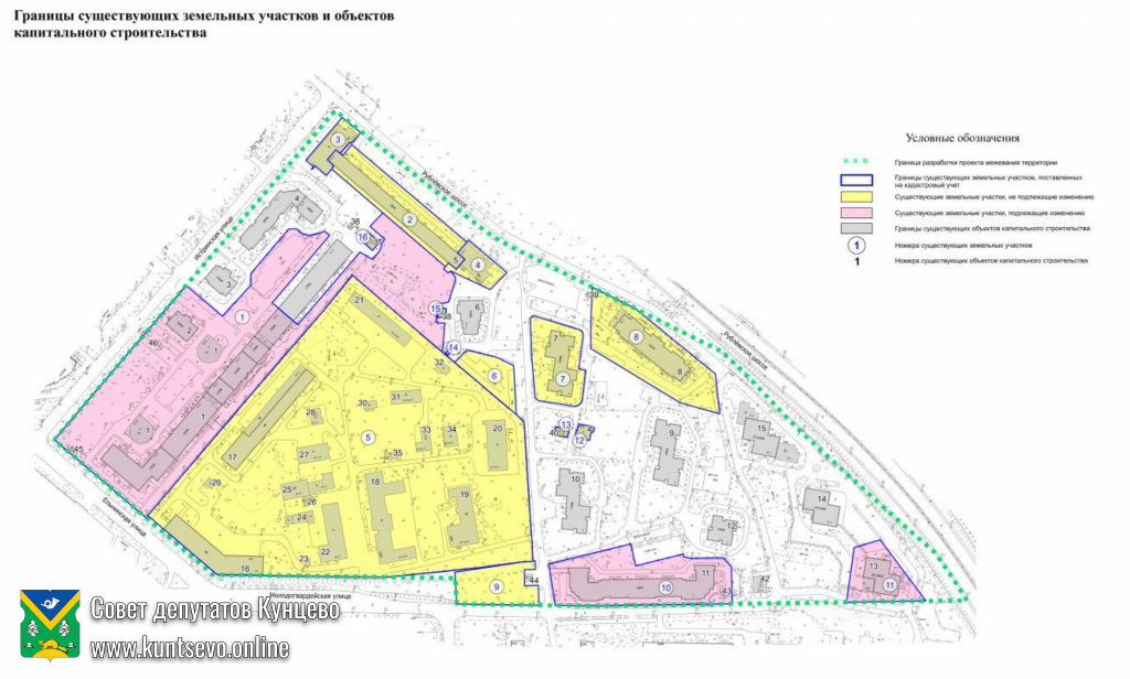
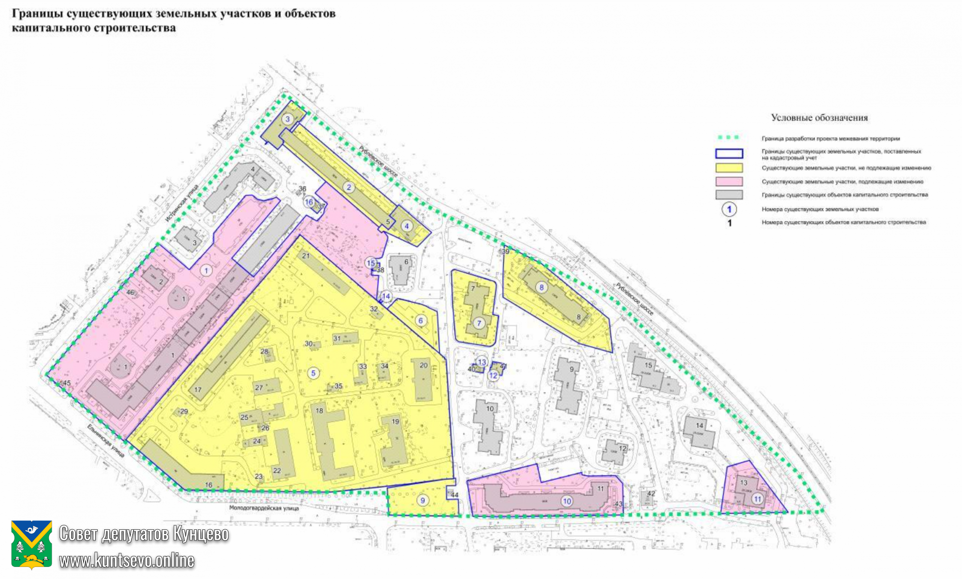
В ближайшее время на публичные слушания будет вынесен проект межевания 21-го квартала Кунцево.
21 квартал ограничен Рублевским шоссе, Молодогвардейской улицей, Ельнинской улицей, Истринской улицей (ЗАО).
Жителям нужно ознакомиться с границами участка своего многоквартирного дома и если он вас не устраивает, то необходимо начать собирать подписи жителей вашего дома под замечаниями к будущим публичным слушаниям.
После завершения публичных слушаний, проектировщики должны будут внести изменения в соответствии с поступившими замечаниями к проекту и передать финальный проект межевания на утверждение в департамент городского имущества.
Если у департамента не будет замечаний к проекту, он будет утвержден распоряжением.
В соответствии с утвержденным проектом межевания жители смогут поставить участок своего многоквартирного дома на кадастровый учет.






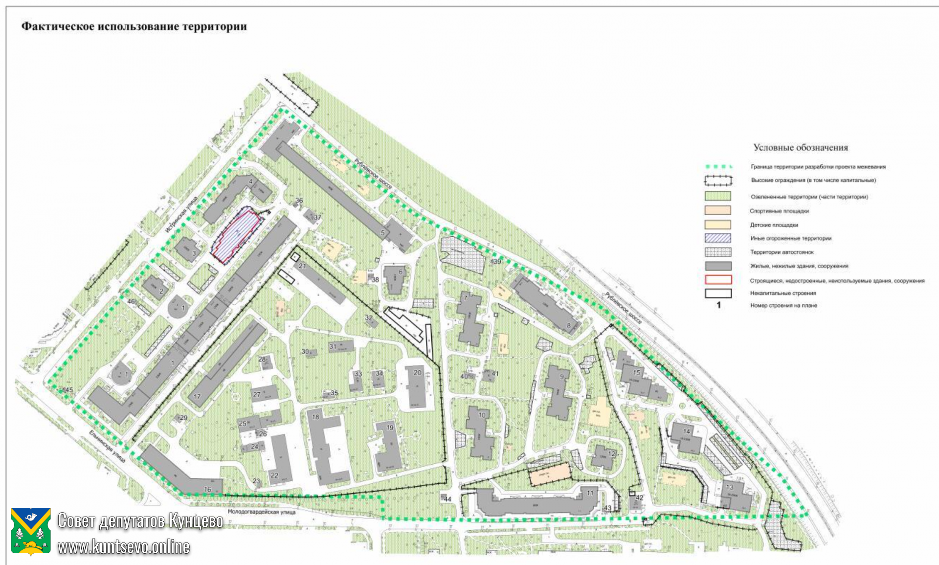
Мы предлагаем исключить из описания участков №7, 9, 10, 11, 16, 19, 20,21, 22, 25, 28, 29, 30 возможность заезда с Рублевки. Также, с целью сохранения существующей парковки, предлагаем выделить из 31 участка прямоугольный участок (примыкает к дому №8 по Молодогвардейской) с присвоением ему статуса общественной территории и функц. назначением — общественная парковка
Очень просим отразить наше мнение на заседании ГЗК, кот. состоится во вторник.
Спасибо, с ув., Совет дома №8