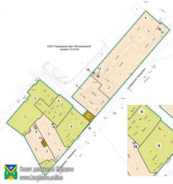
Проект межевания ООПТ «ПП «Москворецкий», внут. проездом, ул. Маршала Тимошенко (ЗАО). — Портал независимых депутатов Кунцево

Проект межевания ООПТ «ПП «Москворецкий», внут. проездом, ул. Маршала Тимошенко (ЗАО).

Документ PDF:

Проект межевания ООПТ «ПП «Москворецкий», внут. проездом, ул. Маршала Тимошенко (ЗАО). 0Проект межевания ООПТ «ПП «Москворецкий», внут. проездом, ул. Маршала Тимошенко (ЗАО). 1Проект межевания ООПТ «ПП «Москворецкий», внут. проездом, ул. Маршала Тимошенко (ЗАО). 2Проект межевания ООПТ «ПП «Москворецкий», внут. проездом, ул. Маршала Тимошенко (ЗАО). 3
2896
RSS
Нет комментариев. Ваш будет первым!
Загрузка...